在筑岸,每天见证不一样的自己!
每天一个精选案例
从实际项目出发,提升自己的设计思维能力
与考研建筑快题有效衔接
结合自身情况,逐点突破
课程全程免费
老师随时上线为大家答疑
学员之间互助点评,从别人的图面反思自身的问题
连续打卡30天的学员,可获赠部分筑岸网络课程
从今天开始,每天30分钟,一起来抄绘吧
你准备好了吗?
报名方式:将该文章转发朋友圈,截图发给老师,扫以下二维码添加廖老师微信报名

筑岸抄绘设计思维提升训练免费互助平台
适合每一位想要提升自我建筑设计能力的学生
记得分享给身边有需要的小伙伴们,大家一起来学设计!
以下是筑岸抄绘互助平台正式启动的课程:
01 建筑方案抄绘7大要点(收藏)
以下7大要点请看视频课程里廖老师的详细讲解。

02 筑岸互助评图打分表(收藏)
以下打分表使用方法请看视频课程里廖老师的详细讲解。

03 建筑抄绘案例 打卡031
以上为廖老师补充讲解音频
抄绘案例:像小镇一样的西班牙Verin艺术中心 / ZOOCO ESTUDIO
建筑门类:观演建筑类
项目设计的出发点是过去的一次环境研究,在这次研究中,建筑师发现Concello do Verín围绕城市核心发展,其中的街区尽管形状不同,但大都有相同的配置,这种异质性让它们在区域内显得与众不同。在这些街区中,许多小房子沿街边布置,面向道路留有开口,连接公共的室内空间,将不同的建筑联系在一起,成为Verin内的社区,亦被称作“城镇”。这些“城镇”的排布秩序不是固定的,而是根据其灵活多变的功能随机形成。
The initial approach of the project comes from a previous study of the environment. From this analysis, we get the conclusion that Concello do Verín stands out by the heterogeneity of its blocks, which have been developed around an urban nucleus. Even though each block has different shapes, the way they are set is the same in most of them. This occupation is based in many small buildings that are aligned with the edges of the patches, standing next to the road and leaving gaps to the interiors for common spaces, grouped in this way, into small communities or ‘towns’ within the whole Verin. ‘Towns’ with a random order that are being defined by the flexibility of its uses.
▼建筑外观,external view of the building ?ROLAND HALBE

项目为一座艺术中心,其中的功能各行其是,但是整体上取得平衡且相互加强。和上文所举的例子一样,每个单元对外都是独立的,并在内部有所联系,但是单元之间互不干涉。设计的概念就是在这个基本的前提下形成的。市政厅要求的各个功能都被设计成了单元体块,沿地块边缘排布,创造了一个没有等级、和平共处的空间,体现了小社区理念。在艺术中心里,每个单元都可以作为单独的“房子”供人举办不同活动,而这些单元聚集在一起,就成为了一个充满活力的“城镇”。游客可以通过三条主路交汇处宽阔的入口广场进入项目,这些道路一直延伸到建筑之中,加强了“城镇”的感觉。在体块靠近边缘的地方会形成公共空间,同时作为不同单元的室外入口使用。
This project is a Centre of Arts where the fact that each use works by its own way but on balance is emphasized. The example we follow is the scheme above mentioned, where each unit works independently to the exterior and in conjunction to the interior, not interfering with others. This basic premise involve the concept of the proposal. Each use of the program required by the City Hall materializes as a unit, as a volume that is aligned to the edge of the plot creating a space of coexistence and relationship, without hierarchies, supporting the idea of small community. The Centre of Arts turns into a space of convenience of different activities, an special place where its units works as separate ‘houses’ and as ‘town’ all together. Talking about the access, the visitor could entry through a large square in the corner where the three main roads conclude. A walk that will continue inside the building to enhance the idea of ‘town’. In addition, everytime that the volumes contact with the edge of the patch, some common spaces are generate, at the same time of exterior access of each volume is created.
▼建筑轴测图,由多个独立体块组成,axonometric drawing, composed by separate volumes

▼单独的功能体块,separate unit with its own function ?ROLAND HALBE

▼剧院,theater ?ROLAND HALBE

随着设计深入,建筑师知道不同的功能之间不可能没有联系,于是在保留室外人体尺度体块和室内公共空间的同时,将单元根据功能进行移动,形成间隙空间。这些反常规的间隙空间尺度多样,上一秒还在房子的中间,下一秒就可以藏到其他地方。人们如同在一个小城之中,随心所欲地利用空间,从一侧走到另一侧,在转角的私密处稍作停留或是离开,社交活动也会随之发生。设计的手法极为精确,体块的移动和转折看似随意,但都经过精密计算,以激活空间的活性。不同功能体块相互联系,自然而然地形成多种活动,其自由性和不可预测性成为了整个建筑的特征。从总体上来说,设计将分离的体块联系在一起,创造了数个活动核心,不同的功能让这些单元产生交集并发生改变,形成了丰富多彩的空间。
Once comes to this point, we reach the conclusion that it is impossible to avoid the relations between the different uses, so respecting the scheme of individual volumes to the exterior and common space to the interior, the units are sliding according to its use and letting interstitial spaces appear. Between volumes irregular spaces arise as a cell, places of different scales that allow users enjoy rooms center and hide at once. Like a small town, center users interpret and live spaces freely and at will. They walk from one side to another, seeking privacy behind a corner or leave, are left to see and relate. Formally the design method is surprisingly accurate. The displacement and delicate turn of volumes generates a random appearance scheme but full of relationships and variants. It is a place defined by its own flexibility, unpredictable. Something involuntary that occurs as a result of the relationships of their own uses. In conclusion, this scheme make separation and connexion of the units compatible, generating numerous nucleous that interact and change depending on the use of its occupants.
▼屋顶绿化平台,roof deck in green ?ROLAND HALBE

▼夜景,体块之间形成公共空间,night view, common space between volumes ?ROLAND HALBE

建筑由混凝土和玻璃构成,构造简洁,形式出众。此外,项目没有忘记和环境的关系,在尺度上与周边相协调。屋顶平台由植物覆盖,成为了建筑的“第五个立面”,将不同的单元体块统一在一起。项目平面布局和功能之间的独立性使它可以轻松被改变或扩建,只要遵循不变的外观和空间组织形式,就可以根据需求建造新的功能单元。建筑中的绿化空间、可回收铺地和节能节水装置使它在可持续发展方面也可圈可点。
Despite of the simplicity of its construction ( concrete and glass volumes), the centre has a outstanding character, without dismissing the environment it is set and taking care about the scale (size and height) with the surroundings. The general aspect is filled by ‘the fifth fa?ade’ of the building, the deck. In this case, it is made of green cover. Due to the way it is set in the plan, and the independence of its use, this is a centre that can be changed and expanded easily, because both appearance and operation are unalterable. The last remarkable aspect of the building is its sustainable manner, due to the materials in the urban land (Green spaces and recyclable pavement) and the installations, that allows energy and water savings.
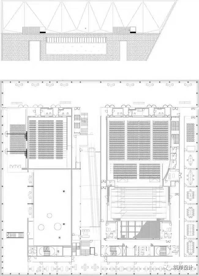
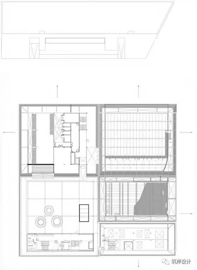
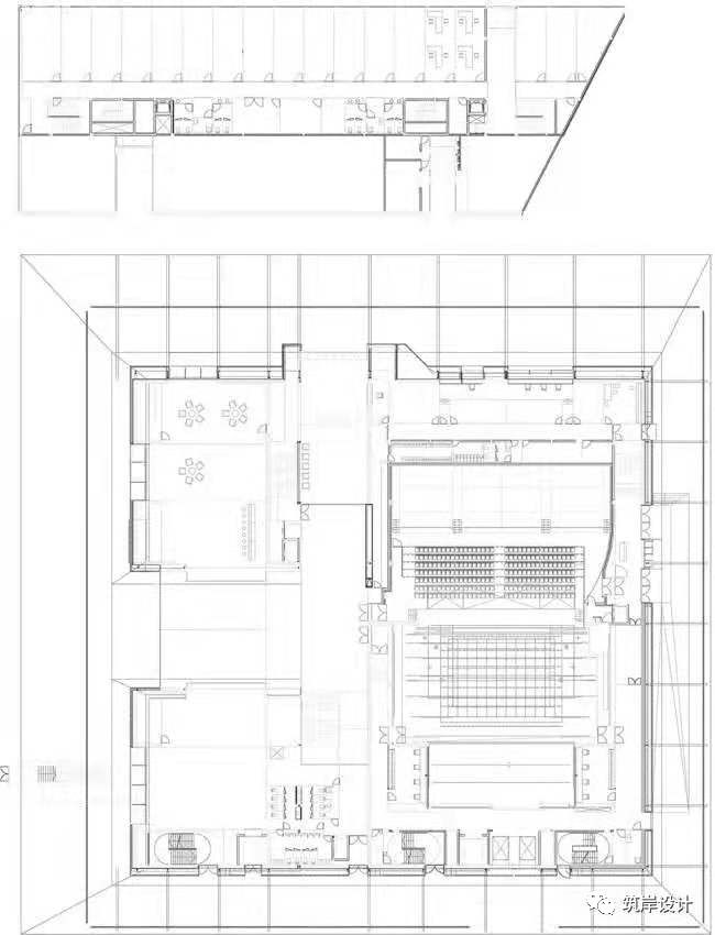
▼平面图,plans

▼剖面图,section

▼不同单元剖面,sections of different units

04 案例讲解及点评
助教讲解
【抄绘案例】像小镇一样的西班牙Verin艺术中心 / ZOOCO ESTUDIO
本次案例重点(可参考筑岸观演类建筑课程详细讲解):一、平面构成。建筑由几个体块构成,几个体块分别是不同功能的使用空间,每个单元对外都是独立的,再通过一些公共的连廊、交通空间连接。

二、造型。几个体块的造型处理一致,体块之间的公共空间区别于体块,高度上更低,并且采用比较通透(玻璃材质)的手法处理。

三、屋顶绿化。

四、大空间的处理。同第一点的说明采用的是独立的布局,在剖面处理上,观众席需要起坡本案例采用往下挖的方式。

廖老师补充图

05 案例拓展-考研真题推荐
北京工业大学2019年初北方某剧场建筑
参考课程链接:
【真题突破】观演类&新旧-北京工业大学2019初:北方某剧场建筑设计任务书讲解

浙江大学2019年初讲经堂设计
参考课程链接:【真题突破】浙江大学2019初:讲经堂设计任务书讲解

同济大学2018夏令营生态展览馆、剧场设计
参考课程链接:【真题突破】同济大学2018夏令营:生态展览馆、剧场设计任务书讲解

06 学生抄绘图纸(满分10分) 打卡031
抄绘要求:请在30分钟内完成此案例抄绘,根据自己的理解灵活选择需要画的图,重点表达设计层面的内容。
表达方式:根据考研备考学校要求来训练(未定备考学校或非考研学生可选择适合自己的表达方式)
打分标准:参考《筑岸互助评图打分表》,满分10分,合格线5-6分,中等7-8分,优秀9-10分
07 学生参与互评及打分(满分10分)

见证自己飞跃的人就是你,一起来抄绘吧!
欢迎在文章尾部给我们留言,参与互动交流!
更多抄绘打卡:
【筑岸0元抄绘课程】文体类-大西洋体育馆,葡萄牙 / Valdemar Coutinho Arquitectos-打卡034
【筑岸0元抄绘课程】集装箱类型建筑抄绘 - 三个案例-打卡033
【筑岸0元抄绘课程】商业类(酒店)&山地建筑 - 松阳原舍 · 揽树山房 / gad · line+ studio-打卡032
【筑岸0元抄绘课程】娱乐&地景建筑类-九桥俱乐部地下会堂,韩国 / D·LIM Architects-打卡031
【筑岸0元抄绘课程】博览类&历史街区&新中式-绩溪博物馆,安徽 / 李兴钢建筑工作室-打卡030
【筑岸0元抄绘课程】滨水&商业类(书店)-码头书屋,安徽铜陵 / 东南院-打卡029
【筑岸0元抄绘课程】服务类&地下室-谷家营小镇广场及艺术中心-打卡028
【互助平台】筑岸0元建筑方案抄绘课程-打卡027
【互助平台】筑岸0元建筑方案抄绘课程-打卡026
【互助平台】筑岸0元建筑方案抄绘课程-打卡025
【互助平台】筑岸0元建筑方案抄绘课程-打卡024
【互助平台】筑岸0元建筑方案抄绘课程-打卡023
【互助平台】筑岸0元建筑方案抄绘课程-打卡022
【互助平台】筑岸0元建筑方案抄绘课程-打卡021
【互助平台】筑岸0元建筑方案抄绘课程-打卡020
【互助平台】筑岸0元建筑方案抄绘课程-打卡019
【互助平台】筑岸0元建筑方案抄绘课程-打卡018
【互助平台】筑岸0元建筑方案抄绘课程-打卡017
【互助平台】筑岸0元建筑方案抄绘课程-打卡016
【互助平台】筑岸0元建筑方案抄绘课程-打卡015
【互助平台】筑岸0元建筑方案抄绘课程-打卡014
【互助平台】筑岸0元建筑方案抄绘课程-打卡013 (改)
【课程总结】筑岸0元建筑方案抄绘课程阶段性总结
【互助平台】筑岸0元建筑方案抄绘课程-打卡012
【互助平台】筑岸0元建筑方案抄绘课程-打卡011
【互助平台】筑岸0元建筑方案抄绘课程-打卡010
【互助平台】筑岸0元建筑方案抄绘课程-打卡009
【互助平台】筑岸0元建筑方案抄绘课程-打卡008
【互助平台】筑岸0元建筑方案抄绘课程-打卡007
【互助平台】筑岸0元建筑方案抄绘课程-打卡006
【互助平台】筑岸0元建筑方案抄绘课程-打卡005
【互助平台】筑岸0元建筑方案抄绘课程-打卡004
【互助平台】筑岸0元建筑方案抄绘课程-打卡003
【互助平台】筑岸0元建筑方案抄绘课程-打卡002
【互助平台】筑岸0元建筑方案抄绘课程正式启动!
1. 课程更多信息:请扫以下二维码加廖老师进一步交流(微信号:jz-liaopingrong)

★请加筑岸官方授课QQ群:367521561及时掌握更多课程信息
2. 廖老师简介:筑岸建筑教学总负责人,华工建筑学硕士。《高分建筑快题120例设计方法与评析》编委,中国建筑工业出版社出版,2016.08。

曾受访于央视CCTV4,建筑快题授课课程被CCTV4录制并报道;曾在家琨建筑设计事务所、华工院就职、实习;曾任教于庐山手绘、华元手绘,教龄8年。熟悉手绘、考研、入职、留学等相关内容,所带学生已有500多名成功考入国内主流高校,包含老八校状元。
3. 课程配套小结、文章:作业批改、评图定期会有文章共享给大家,请扫以下二维码关注筑岸设计公众号,了解课程最新的动态:

4. 更多公开课程信息欢迎关注筑岸千聊直播间,掌握第一手课程干货,欢迎扫以下二维码查看

5. 筑岸腾讯课堂小程序主页,请扫以下二维码查看:

招生简章:【疯狂提高班】筑岸20秋季建筑快题疯狂训练课程来袭,你准备好了吗?
更多真题突破:
【真题突破】博览类&地景-京津翼地区设计院:威海市滨海城市博物馆设计任务书讲解
【真题突破】观演类&新旧-北京工业大学2019初:北方某剧场建筑设计任务书讲解
【真题突破】娱乐类&滨水-清华大学2011初:滨水会馆设计任务书讲解
【真题突破】博览类&地域文化-厦门大学2018初:民俗区戏曲展览交流学习中心设计任务书讲解
【真题突破】天际线+谷地、办公+居住-合肥工业大学2009初:某艺术家的居住与创作空间设计任务书讲解
【真题突破】商业规划类&新旧-东南大学2017B:城市某商业中心规划设计任务书讲解
【真题突破】居住类&场地限定-昆明理工大学2013初:院宅设计
【真题突破】博览类&滨水&高差-青岛理工大学2019初:滨海艺术展示中心设计任务书讲解
【真题突破】服务类&新旧-哈尔滨工业大学:某城市市民综合培训中心设计
【真题突破】改扩建&服务类-中央美术学院2019初:粮仓中的旅客服务中心设计任务书讲解
【真题突破】博览类&开放景观-哈尔滨工业大学:湿地博物馆设计
【真题突破】山东建筑大学:市民活动中心设计任务书讲解
【真题突破】同济大学2013复:滨水创意产业园区企业家会所设计
【真题突破】湖南大学2018初:建筑设计工作坊设计任务书讲解
【真题突破】深圳大学2016初(专硕):国家地质公园游客服务中心设计
【真题突破】东南大学2016周:校园咖啡屋设计任务书讲解
【真题突破】浙江大学2005初:高层住宅规划及会所单体
【真题突破】北京建筑大学2018初:科研管理综合楼建筑设计任务书讲解
【真题突破】北京交通大学2016初:旅游服务中心设计
【真题突破】合肥工业大学2015初:某高校生态建筑技术研究中心设计任务书讲解
【真题突破】天津大学2004初:某地方风味特色餐厅设计
【真题突破】合肥工业大学2018初:某住区售房中心设计任务书讲解
【真题突破】西安建筑科技大学2018复:山间小镇乡村酒店设计
【真题突破】武汉大学2010初:艺术家画廊设计任务书讲解
【真题突破】重庆大学2005初:地方民俗陈列馆设计
【真题突破】同济大学 同济院 画廊设计任务书讲解
【真题突破】厦门大学2018夏令营:驿站快题设计任务书讲解
【真题突破】深圳大学2015初:羽毛球健身会馆设计
【真题突破】深圳大学2017初:校园书吧设计任务书讲解
【真题突破】哈尔滨工业大学2010初:城市社区图书中心设计
【真题突破】西安建筑科技大学2015初:幼儿园建筑设计
【真题突破】大连理工大学2019初:高校校史展览馆与艺术中心设计任务书讲解
【真题突破】同济大学2009初:独立式住宅设计
【真题突破】华侨大学2018复:学生社区便民服务站快题设计任务书讲解
【真题突破】深圳大学2016初:生态展览馆设计
【真题突破】武汉理工大学2002初:某住宅设计任务书讲解
【真题突破】哈尔滨工业大学2019初:松江自然历史博物馆建筑设计任务书讲解
【真题突破】西安建筑科技大学2014初:知青纪念馆设计
【真题突破】同济大学2018夏令营:生态展览馆、剧场设计任务书讲解
【真题突破】华中科技大学2017初:老有所居家居式老年公寓设计
【真题突破】重庆大学2017初:小型社区服务中心、游客接待中心、展示中心任务书讲解
【真题突破】东南大学2015初A:社区卫生所设计
【真题突破】同济大学2019初:小型文化艺术中心设计任务书讲解
【真题突破】北京工业大学2017初:北京郊区某公园滨水餐厅设计
【真题突破】华南理工大学2019初:社区老年人餐服中心设计任务书讲解
【真题突破】郑州大学2014初:水上餐厅设计
【真题突破】湖南大学2019初:社区艺术及服务中心设计任务书讲解
【真题突破】中国矿业大学2014初:社区卫生服务中心设计
【真题突破】重庆大学2019初:基于生态修复的村镇文化中心设计
【真题突破】天津大学2013初:公园中的特色餐厅设计
【真题突破】深圳大学2019初:创想?家设计任务书讲解
【真题突破】华侨大学2017初 乡村访客接待中心设计
【真题突破】清华大学2019初 清华大学西门游客接待中心建筑设计任务书讲解
【真题突破】华南理工大学2010初 历史街区休闲驿站设计
【真题突破】浙江大学2019初:讲经堂设计任务书讲解
【真题突破】东南大学2016保研:社区幼儿园设计评图
【真题突破】西安建筑科技大学2015保复 冥想空间设计
【真题突破】华南理工大学1994-2017建筑快题真题解析与高分备考建议
【真题突破】东南大学1995-2017建筑快题真题解析与备考建议
【真题突破】厦门大学2019初:创意工作坊设计任务书讲解
【真题突破】西南交通大学2012初:湿地研究中心改扩建设计评图
【真题突破】深圳大学2017 初试:华南地区某高校校园视觉艺术中心评图
【真题突破】西安建筑科技大学2018初试:华山古镇皮影博物馆设计
【真题突破】北京工业大学2017初:北京郊区某公园滨水餐厅
【真题突破】武汉大学2015初试:书友俱乐部设计
【真题突破】东南大学2014初试:摄影爱好者之家
【真题突破】华南理工大学2017初试:建筑学院院史展览及校友交流中心设计
【真题突破】深圳大学2015初试:羽毛球健身会馆设计评图
【真题突破】浙江大学08考研初试:花园洋房扩建为小区会所设计
【真题突破】深圳大学2014初:社区书店设计
【真题突破】山建08社区会所
【真题突破】重大05地方民俗陈列馆
【真题突破】哈工大市民综合培训中心设计
【真题突破】重大08中学科技楼扩建
【真题突破】清华大学2016保研:清华网络学习中心设计评图
【真题突破】西建10初:三星级宾馆设计
【真题突破】浙大08初洋房改建为小区图书馆
【真题突破】华科17初老年公寓设计
【真题突破】天大10初艺术家工作室
抄绘方法:
【经验分享】快题如何从50分到考场125分 训练方法之一抄绘
总结方法:
【经验分享】如何在疯狂重画中从50分提高到125分 训练方法之二:总结
更多经验分享:
【经验分享】哈尔滨工业大学建筑保研注意事项及备考方法
【经验分享】考上重庆大学,这一路起起落落,风雨过后终见彩虹
【经验分享】2019初试快题130分,成功调剂北京交通大学
【经验分享】2019初试快题132分,我是这样考上华南理工大学的!
【经验分享】2019我是这样考上厦门大学的:复试经验总结
【经验分享】考上华大,我这一路快题跌跌爬爬
【经验分享】如何在疯狂重画中从50分提高到125分 训练方法之二:总结
【经验分享】快题如何从50分到考场125分 训练方法之一抄绘
【调剂快题第一】从厦大到武大,成功逆袭!
【见证一个门外汉的飞跃】19跨考学员的八项建筑快题评图
【初试快题125】看看学霸女神全程复习历程
【同济18初试快题120】看看考场图纸与押题图纸的对接
【经验分享】2018年同济高分学长的全程备考攻略分享
【经验分享】2018年南大高分学长的全程备考攻略分享
【考研心路】考上华工,挣扎着,痛苦着,雨过天晴!
更多课程总结:
【课程总结】图纸汇总、深圳大学历年建筑快题高频考点及最新考试趋势分析
【课程总结】图纸阶段性汇总及深大跨考高频考点训练要点
【课程总结】华工考研建筑快题历年高频考点分析及图纸汇总
【课程总结】建筑快题设计阶段性总结2
【课程总结】建筑快题训练阶段性总结
【课程总结】建筑快题高频错误考点归纳与调整方法2
【课程总结】建筑快题常考考点归纳与实战分析
【讲座总结】考前心态调整:这一路的坎坷教会我如何坚持!
【课程总结】建筑设计常用分析图
【课程总结】建筑快题高频考点汇总及考研快题设计能力提升训练方向调整
【课程总结】建筑快题高频考点分析与华中科技大学在场地设计层面上的备考方法
【课程总结】苏州大学建筑考研图纸汇总及跨专业备考注意事项
【课程总结】厦大备考走过的弯路---建筑快题备考过程中如何把握对于设计独立思考的感性与理性
【课程总结】华中科技大学建筑快题高频考点分析及20备考策略、方向说明
【课程总结】厦门大学建筑快题历年真题考点分析与20备考趋势讲解
【课程总结】建筑门厅设计专项二
【课程总结】建筑快题中“规划类”题型讲解,考点分析、设计手法及高频规范汇总
【课程总结】建筑快题图纸总结及东南大学建筑快题备考要点分析
【课程总结】华中科技大学近几年建筑快题真题考点梳理与备考要点分析
【课程总结】建筑快题核心考点分析及厦门大学建筑考研快题备考重点说明
【课程总结】哈尔滨工业大学建筑保研注意事项及备考方法
【课程总结】建筑入口空间总结
【课程总结】地域性元素归纳与总结
【课程总结】建筑门厅空间设计归纳与总结
【课程总结】建筑快题高频考点及问题整理
【课程总结】建筑快题设计中高频错误归纳及问题整理
【课程总结】建筑快题高频错误分析及武汉理工大学备考要点整理
【课程总结】考研建筑快题设计总结及华中科技大学备考要点分析
【课程总结】建筑快题训练总结及华工建筑快题备考要点分析
【课程总结】跨考:建筑快题考点整理及444万能造型课程学习总结
【课程总结】跨考:一个跨专业学生对建筑快题设计对与错的理解及备考误区分析
【课程总结】建筑快题考点及图面问题梳理与归纳
【课程总结】建筑快题考点整理及廖老师配套快题理论课程与444万能建筑造型课程的运用
【课程总结】建筑快题考点回顾与图纸整理
【课程总结】建筑快题训练图纸总结与考点分析
【课程总结】建筑快题图纸回顾及二战备考策略交流
【课程总结】建筑快题考点归纳与图纸总结
【课程总结】建筑快题考点整理&二战备考误区及方向调整
【课程总结】建筑快题考点整理,跨专业备考误区及注意事项
【课程总结】建筑快题考点及图面问题梳理与归纳
【课程总结】建筑快题设计冲刺备考总结
【课程总结】建筑快题训练阶段性总结
【课程总结】建筑快题高频错误考点归纳与调整方法2
【课程总结】建筑快题高频错误考点归纳与调整方法
【课程总结】建筑快题常考考点归纳与实战分析
【讲座总结】考前心态调整:这一路的坎坷教会我如何坚持!
【课程总结】分析图归纳与总结
【课程总结】建筑门厅设计专项二
更多真题汇集:
【快题真题汇集】北京交通大学考研建筑快题历年真题2011-2018
【快题真题汇集】武汉理工大学考研建筑快题历年真题2002-2018
【快题真题汇集】合肥工业大学考研建筑快题历年真题2002-2018
【快题真题汇集】北京工业大学考研建筑快题历年真题1999-2019
【快题真题汇集】西安建筑科技大学考研建筑快题历年真题1999-2019
【快题真题汇集】北京建筑大学考研建筑快题历年真题1992-2019
【快题真题汇集】浙江大学考研建筑快题历年真题1999-2019
【快题真题汇集】武汉大学考研建筑快题历年真题2002-2019
【快题真题汇集】华南理工大学考研建筑快题历年真题1999-2019
【快题真题汇集】清华大学考研建筑快题历年真题1999-2019
【快题真题汇集】同济大学考研建筑快题历年真题1999-2019
【快题真题汇集】湖南大学考研建筑快题历年真题1999-2019
【快题真题汇集】郑州大学考研建筑快题历年真题2004-2018
【快题真题汇集】昆明理工大学考研建筑快题历年真题2007-2019
【快题真题汇集】厦门大学考研建筑快题历年真题1999-2019
【快题真题汇集】哈尔滨工业大学考研建筑快题历年真题1999-2019
【快题真题汇集】重庆大学考研建筑快题历年真题1990-2019
【快题真题汇集】华中科技大学考研建筑快题历年真题2000-2019
【快题真题汇集】华侨大学考研建筑快题历年真题2009-2018
【快题真题汇集】东南大学考研建筑快题历年真题1999-2019
【快题真题汇集】天津大学考研建筑快题历年真题1999-2019
【快题真题汇集】西南交通大学考研建筑快题历年真题2002-2019
【快题真题汇集】大连理工大学考研建筑快题历年真题2001-2019