中国展示资讯第一平台 最受欢迎图文公号
点击题目下方蓝字关注 品牌货架定制

迷一般地产生出概念的火花,当我们恰当地捕捉到他们时,就会形成较为清晰的视觉化形象。

(Create出品 欢迎转载 请注明出处)

该设计的一个重点是临街的大橱窗,原本呆板的两个长方形窗洞,借由凸出外墙的装饰架而获得新生。L型的退台在两个橱窗分别形成“台阶”和“门洞”两种不同的造型,其中一个橱窗的台阶形式延伸至室内,形成室内、外自然的关联。丰富且变化的退台橱窗,透露出ARTDECO的优雅气质,不仅为O.T.S带来了独有的标志性,也确立了品牌的空间调性。

如何让空间看起来轻松自如,并体现出预想的优雅感,需要一个巧妙的解决方法。将天花上的梁从天而降拉至地板,形成一个有厚度的“墙体”,同时在这个墙体上开“洞”,“洞”中陈列商品。这种既满足功能又营造空间感的手法一经确立,便锁定整个空间的基调。

在店里,几乎看不到陈列道具,空间成为体验的主体,“墙”营造出层层递进的关系。购物者可以在这里获得一种漫游式的购物体验,特别是在二楼,三层递进的空间,购物者漫游其间,透过不同造型的“墙洞”,“你”和“我”两两相望成为彼此的风景。移步换景式的购物体验也使该店拥有了独一无二的属性。

该店的主材选择了浅灰色的水磨石。浅灰色和白底粉颗粒的两款水磨石打底,搭配有光泽度和手工纹理感的浅灰色马来漆,加上挂衣杆的金色,共同营造出简约而高雅的购物氛围。水磨石自然的石子纹理为空间增添了亲切宜人的主调,同时这样的颗粒感,也正体现了该设计的另一层意向:“观景”,它最终圆满了这个设计中的“移步换景”。

剖面透视图

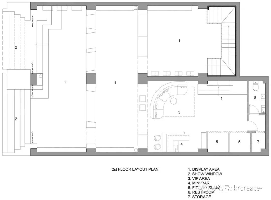
平面图

「 在这里,
有私享,
亦有交流;
有脱离,
亦有融合;
有当下,
亦有梦想。」
●●●●●
关注科锐,
更多好作品呈现给您....
