厦门大学2016初:青年旅馆设计任务书讲解
01 任务书

02 解题思路
03 补充图

04 参考案例
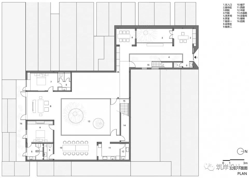
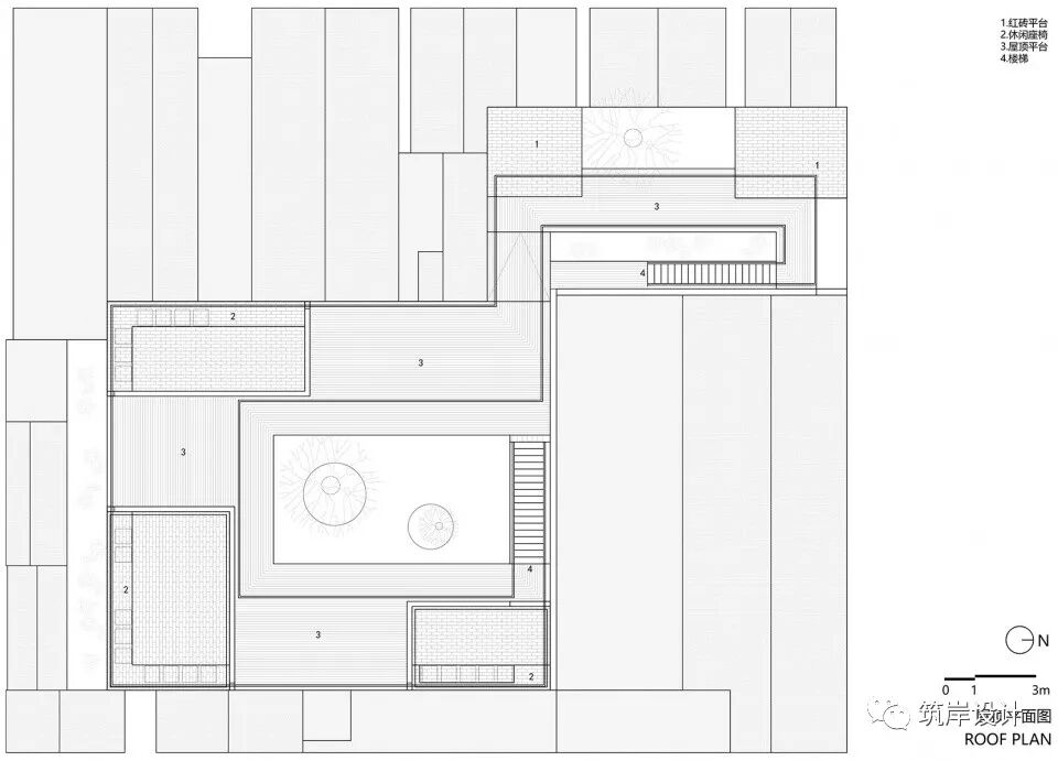
北京折叠院

唐堡书院-村民公共活动中心

图片版权为原作者所有
案例授权转载自【每日建筑】
· END ·
图片版权为原作者所有
1. 课程更多信息:请扫以下二维码加廖老师进一步交流(微信号:jz-liaopingrong)

★请加筑岸官方授课QQ群:367521561及时掌握更多课程信息
2. 廖老师简介:筑岸建筑教学总负责人,华工建筑学硕士。《高分建筑快题120例设计方法与评析》编委,中国建筑工业出版社出版,2016.08。

曾受访于央视CCTV4,建筑快题授课课程被CCTV4录制并报道;曾在家琨建筑设计事务所、华工院就职、实习;曾任教于庐山手绘、华元手绘,教龄8年。熟悉手绘、考研、入职、留学等相关内容,所带学生已有500多名成功考入国内主流高校,包含老八校状元。
3. 课程配套小结、文章:作业批改、评图定期会有文章共享给大家,请扫以下二维码关注筑岸设计公众号,了解课程最新的动态:

4. 更多公开课程信息欢迎关注筑岸千聊直播间,掌握第一手课程干货,欢迎扫以下二维码查看

5. 筑岸腾讯课堂小程序主页,请扫以下二维码查看:

招生简章:【保航课程】筑岸20建筑快题考前定制冲刺强化课程招生简章
更多真题突破:
【真题突破】博览类&遗迹(古井)&新旧&雕塑—武汉理工大学2007初:宋玉纪念馆设计任务书讲解
【真题突破】服务类&功能置换&场地限定—京津翼地区设计院:展示中心方案设计任务书讲解
【真题突破】文教类-深圳大学2018复:九班幼儿园设计任务书讲解
【真题突破】博览类&新旧&城市肌理-大连理工大学2018初:城市民居历史展览馆设计任务书讲解
【真题突破】展览类&新旧-合肥工业大学2008初:某高新技术体验发布中心设计任务书讲解
【真题突破】娱乐类&扩建&新旧&观演空间-同济大学2016综合:社区活动中心设计任务书讲解
【真题突破】博览类&地景-京津翼地区设计院:威海市滨海城市博物馆设计任务书讲解
【真题突破】观演类&新旧-北京工业大学2019初:北方某剧场建筑设计任务书讲解
【真题突破】娱乐类&滨水-清华大学2011初:滨水会馆设计任务书讲解
【真题突破】博览类&地域文化-厦门大学2018初:民俗区戏曲展览交流学习中心设计任务书讲解
【真题突破】天际线+谷地、办公+居住-合肥工业大学2009初:某艺术家的居住与创作空间设计任务书讲解
【真题突破】商业规划类&新旧-东南大学2017B:城市某商业中心规划设计任务书讲解
【真题突破】居住类&场地限定-昆明理工大学2013初:院宅设计
【真题突破】博览类&滨水&高差-青岛理工大学2019初:滨海艺术展示中心设计任务书讲解
【真题突破】服务类&新旧-哈尔滨工业大学:某城市市民综合培训中心设计
【真题突破】改扩建&服务类-中央美术学院2019初:粮仓中的旅客服务中心设计任务书讲解
【真题突破】博览类&开放景观-哈尔滨工业大学:湿地博物馆设计
【真题突破】山东建筑大学:市民活动中心设计任务书讲解
【真题突破】同济大学2013复:滨水创意产业园区企业家会所设计
【真题突破】湖南大学2018初:建筑设计工作坊设计任务书讲解
【真题突破】深圳大学2016初(专硕):国家地质公园游客服务中心设计
【真题突破】东南大学2016周:校园咖啡屋设计任务书讲解
【真题突破】浙江大学2005初:高层住宅规划及会所单体
【真题突破】北京建筑大学2018初:科研管理综合楼建筑设计任务书讲解
【真题突破】北京交通大学2016初:旅游服务中心设计
【真题突破】合肥工业大学2015初:某高校生态建筑技术研究中心设计任务书讲解
【真题突破】天津大学2004初:某地方风味特色餐厅设计
【真题突破】合肥工业大学2018初:某住区售房中心设计任务书讲解
【真题突破】西安建筑科技大学2018复:山间小镇乡村酒店设计
【真题突破】武汉大学2010初:艺术家画廊设计任务书讲解
【真题突破】重庆大学2005初:地方民俗陈列馆设计
【真题突破】同济大学 同济院 画廊设计任务书讲解
【真题突破】厦门大学2018夏令营:驿站快题设计任务书讲解
【真题突破】深圳大学2015初:羽毛球健身会馆设计
【真题突破】深圳大学2017初:校园书吧设计任务书讲解
【真题突破】哈尔滨工业大学2010初:城市社区图书中心设计
【真题突破】西安建筑科技大学2015初:幼儿园建筑设计
【真题突破】大连理工大学2019初:高校校史展览馆与艺术中心设计任务书讲解
【真题突破】同济大学2009初:独立式住宅设计
【真题突破】华侨大学2018复:学生社区便民服务站快题设计任务书讲解
【真题突破】深圳大学2016初:生态展览馆设计
【真题突破】武汉理工大学2002初:某住宅设计任务书讲解
【真题突破】哈尔滨工业大学2019初:松江自然历史博物馆建筑设计任务书讲解
【真题突破】西安建筑科技大学2014初:知青纪念馆设计
【真题突破】同济大学2018夏令营:生态展览馆、剧场设计任务书讲解
【真题突破】华中科技大学2017初:老有所居家居式老年公寓设计
【真题突破】重庆大学2017初:小型社区服务中心、游客接待中心、展示中心任务书讲解
【真题突破】东南大学2015初A:社区卫生所设计
【真题突破】同济大学2019初:小型文化艺术中心设计任务书讲解
【真题突破】北京工业大学2017初:北京郊区某公园滨水餐厅设计
【真题突破】华南理工大学2019初:社区老年人餐服中心设计任务书讲解
【真题突破】郑州大学2014初:水上餐厅设计
【真题突破】湖南大学2019初:社区艺术及服务中心设计任务书讲解
【真题突破】中国矿业大学2014初:社区卫生服务中心设计
【真题突破】重庆大学2019初:基于生态修复的村镇文化中心设计
【真题突破】天津大学2013初:公园中的特色餐厅设计
【真题突破】深圳大学2019初:创想?家设计任务书讲解
【真题突破】华侨大学2017初 乡村访客接待中心设计
【真题突破】清华大学2019初 清华大学西门游客接待中心建筑设计任务书讲解
【真题突破】华南理工大学2010初 历史街区休闲驿站设计
【真题突破】浙江大学2019初:讲经堂设计任务书讲解
【真题突破】东南大学2016保研:社区幼儿园设计评图
【真题突破】西安建筑科技大学2015保复 冥想空间设计
【真题突破】华南理工大学1994-2017建筑快题真题解析与高分备考建议
【真题突破】东南大学1995-2017建筑快题真题解析与备考建议
【真题突破】厦门大学2019初:创意工作坊设计任务书讲解
【真题突破】西南交通大学2012初:湿地研究中心改扩建设计评图
【真题突破】深圳大学2017 初试:华南地区某高校校园视觉艺术中心评图
【真题突破】西安建筑科技大学2018初试:华山古镇皮影博物馆设计
【真题突破】北京工业大学2017初:北京郊区某公园滨水餐厅
【真题突破】武汉大学2015初试:书友俱乐部设计
【真题突破】东南大学2014初试:摄影爱好者之家
【真题突破】华南理工大学2017初试:建筑学院院史展览及校友交流中心设计
【真题突破】深圳大学2015初试:羽毛球健身会馆设计评图
【真题突破】浙江大学08考研初试:花园洋房扩建为小区会所设计
【真题突破】深圳大学2014初:社区书店设计
【真题突破】山建08社区会所
【真题突破】重大05地方民俗陈列馆
【真题突破】哈工大市民综合培训中心设计
【真题突破】重大08中学科技楼扩建
【真题突破】清华大学2016保研:清华网络学习中心设计评图
【真题突破】西建10初:三星级宾馆设计
【真题突破】浙大08初洋房改建为小区图书馆
【真题突破】华科17初老年公寓设计
【真题突破】天大10初艺术家工作室
抄绘方法:
【经验分享】快题如何从50分到考场125分 训练方法之一抄绘
总结方法:
【经验分享】如何在疯狂重画中从50分提高到125分 训练方法之二:总结
更多经验分享:
【经验分享】哈尔滨工业大学建筑保研注意事项及备考方法
【经验分享】考上重庆大学,这一路起起落落,风雨过后终见彩虹
【经验分享】2019初试快题130分,成功调剂北京交通大学
【经验分享】2019初试快题132分,我是这样考上华南理工大学的!
【经验分享】2019我是这样考上厦门大学的:复试经验总结
【经验分享】考上华大,我这一路快题跌跌爬爬
【经验分享】如何在疯狂重画中从50分提高到125分 训练方法之二:总结
【经验分享】快题如何从50分到考场125分 训练方法之一抄绘
【调剂快题第一】从厦大到武大,成功逆袭!
【见证一个门外汉的飞跃】19跨考学员的八项建筑快题评图
【初试快题125】看看学霸女神全程复习历程
【同济18初试快题120】看看考场图纸与押题图纸的对接
【经验分享】2018年同济高分学长的全程备考攻略分享
【经验分享】2018年南大高分学长的全程备考攻略分享
【考研心路】考上华工,挣扎着,痛苦着,雨过天晴!
更多课程总结:
【课程总结】图纸汇总、深圳大学历年建筑快题高频考点及最新考试趋势分析
【课程总结】图纸阶段性汇总及深大跨考高频考点训练要点
【课程总结】华工考研建筑快题历年高频考点分析及图纸汇总
【课程总结】建筑快题设计阶段性总结2
【课程总结】建筑快题训练阶段性总结
【课程总结】建筑快题高频错误考点归纳与调整方法2
【课程总结】建筑快题常考考点归纳与实战分析
【讲座总结】考前心态调整:这一路的坎坷教会我如何坚持!
【课程总结】建筑设计常用分析图
【课程总结】建筑快题高频考点汇总及考研快题设计能力提升训练方向调整
【课程总结】建筑快题高频考点分析与华中科技大学在场地设计层面上的备考方法
【课程总结】苏州大学建筑考研图纸汇总及跨专业备考注意事项
【课程总结】厦大备考走过的弯路---建筑快题备考过程中如何把握对于设计独立思考的感性与理性
【课程总结】华中科技大学建筑快题高频考点分析及20备考策略、方向说明
【课程总结】厦门大学建筑快题历年真题考点分析与20备考趋势讲解
【课程总结】建筑门厅设计专项二
【课程总结】建筑快题中“规划类”题型讲解,考点分析、设计手法及高频规范汇总
【课程总结】建筑快题图纸总结及东南大学建筑快题备考要点分析
【课程总结】华中科技大学近几年建筑快题真题考点梳理与备考要点分析
【课程总结】建筑快题核心考点分析及厦门大学建筑考研快题备考重点说明
【课程总结】哈尔滨工业大学建筑保研注意事项及备考方法
【课程总结】建筑入口空间总结
【课程总结】地域性元素归纳与总结
【课程总结】建筑门厅空间设计归纳与总结
【课程总结】建筑快题高频考点及问题整理
【课程总结】建筑快题设计中高频错误归纳及问题整理
【课程总结】建筑快题高频错误分析及武汉理工大学备考要点整理
【课程总结】考研建筑快题设计总结及华中科技大学备考要点分析
【课程总结】建筑快题训练总结及华工建筑快题备考要点分析
【课程总结】跨考:建筑快题考点整理及444万能造型课程学习总结
【课程总结】跨考:一个跨专业学生对建筑快题设计对与错的理解及备考误区分析
【课程总结】建筑快题考点及图面问题梳理与归纳
【课程总结】建筑快题考点整理及廖老师配套快题理论课程与444万能建筑造型课程的运用
【课程总结】建筑快题考点回顾与图纸整理
【课程总结】建筑快题训练图纸总结与考点分析
【课程总结】建筑快题图纸回顾及二战备考策略交流
【课程总结】建筑快题考点归纳与图纸总结
【课程总结】建筑快题考点整理&二战备考误区及方向调整
【课程总结】建筑快题考点整理,跨专业备考误区及注意事项
【课程总结】建筑快题考点及图面问题梳理与归纳
【课程总结】建筑快题设计冲刺备考总结
【课程总结】建筑快题训练阶段性总结
【课程总结】建筑快题高频错误考点归纳与调整方法2
【课程总结】建筑快题高频错误考点归纳与调整方法
【课程总结】建筑快题常考考点归纳与实战分析
【讲座总结】考前心态调整:这一路的坎坷教会我如何坚持!
【课程总结】分析图归纳与总结
【课程总结】建筑门厅设计专项二
更多真题汇集:
【快题真题汇集】北京交通大学考研建筑快题历年真题2011-2018
【快题真题汇集】武汉理工大学考研建筑快题历年真题2002-2018
【快题真题汇集】合肥工业大学考研建筑快题历年真题2002-2018
【快题真题汇集】北京工业大学考研建筑快题历年真题1999-2019
【快题真题汇集】西安建筑科技大学考研建筑快题历年真题1999-2019
【快题真题汇集】北京建筑大学考研建筑快题历年真题1992-2019
【快题真题汇集】浙江大学考研建筑快题历年真题1999-2019
【快题真题汇集】武汉大学考研建筑快题历年真题2002-2019
【快题真题汇集】华南理工大学考研建筑快题历年真题1999-2019
【快题真题汇集】清华大学考研建筑快题历年真题1999-2019
【快题真题汇集】同济大学考研建筑快题历年真题1999-2019
【快题真题汇集】湖南大学考研建筑快题历年真题1999-2019
【快题真题汇集】郑州大学考研建筑快题历年真题2004-2018
【快题真题汇集】昆明理工大学考研建筑快题历年真题2007-2019
【快题真题汇集】厦门大学考研建筑快题历年真题1999-2019
【快题真题汇集】哈尔滨工业大学考研建筑快题历年真题1999-2019
【快题真题汇集】重庆大学考研建筑快题历年真题1990-2019
【快题真题汇集】华中科技大学考研建筑快题历年真题2000-2019
【快题真题汇集】华侨大学考研建筑快题历年真题2009-2018
【快题真题汇集】东南大学考研建筑快题历年真题1999-2019
【快题真题汇集】天津大学考研建筑快题历年真题1999-2019
【快题真题汇集】西南交通大学考研建筑快题历年真题2002-2019
【快题真题汇集】大连理工大学考研建筑快题历年真题2001-2019