
装修装饰技术联盟装修干货、工艺做法
推荐关注哦~~~
关注来源:谷德设计网 新微设计
版权归原作者所有

6个最新“美丽乡村”优秀建设案例
01.
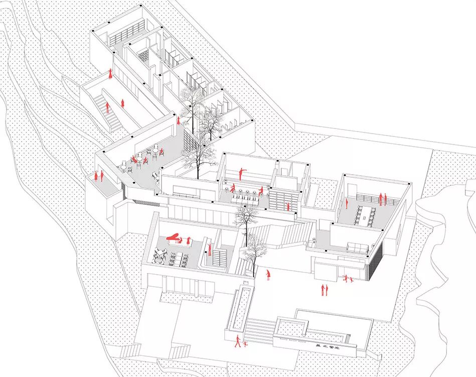
陈溪乡邻中心
浙江的小村庄暨家寨,其入口有一片开阔的石头广场,后面的屋檐轻轻地浮现在群山和广场之间。

西方文艺复兴画作“最后的晚餐”和东方一个不知名小村里与世无争的村民,为什么拥有如此相通的感觉和空间体验?
也许是因为他们同时有着对于秩序的认知,无论是一种建立在几何学基础上的对于宇宙秩序的认知还是一种对于特定自然环境的认知。陈溪乡邻中心,正是以一种相似的姿态呈现在村民的眼前。

屋檐压低到人的高度以下,暗示其入口的隐蔽性,向上的坡屋顶将人的视线引向远方的群山;25米跨度的大梁和场地若即若离,犹如Castagno的白桌面横穿过整个视线。

乡邻中心的基地虽小,但却位于一块复杂的三角形地块上,北侧是L型的四层楼政府办公楼,围合成政府大院,但是却比乡邻中心的基地高出三米,南侧是一条斜向的道路和其它的几条主干道组成Z字型的上坡。东侧则是一条死胡同,紧贴着民居。

从政府大院看,设计师希望建筑尽量低矮,但却要遮挡住道路南侧的一排杂乱的农民房屋顶。这样,远处的群山才能被最纯粹地引入到大院中。

从南侧的道路看,设计师希望能把建筑体量抬起,不仅为地面停车和进入建筑留出足够的空间,更重要的是水平的二楼体量腾空于斜向的山地道路,其对比可以揭示场地的特征。

东侧相对较封闭的体量则尽量减少了对于邻居的干扰。这样就自然形成了建筑中间的三角形空间,上方的天光犹如James Turrell的空间艺术,在上楼时给予光的指引,暗示其作为陈溪乡的结构中心和精神中心。
设计从周围的群山出发,把建筑和更大的村落结构和自然结构联系了起来。

乡邻中心只有三道Y字形的混凝土剪力墙支撑,没有任何多余的结构。空间和动线组织都是基于这一结构主体,是几何秩序和建筑自治的体现。如此大跨度的结构显然是对传统乡村建造方式的一种“挑衅”,但却是根据现场的自然环境和特定的村落结构组织而成。

项目图纸

项目名称:陈溪乡邻中心
设计方:苏州个别建筑设计事务所
项目设计 & 完成年份:2017 & 2019
主创:王斌
团队:谢选集,刘凯强,何政霖,张蓓
结构:张准,李锋清
项目地址:浙江省上虞区陈溪风情小镇
建筑面积:500
摄影版权:沈惠峰,郝萍,王凯雯
02.
武隆·懒坝美术馆

懒坝美术馆是武隆·懒坝国际大地艺术季设计的主展示场馆。作为整个展览活动中最重要的一个建筑,其本身即是一件大地艺术作品。在远离都市文明的山中,建筑师利用自然中的经验,通过对大地景观稍加施工,使人重新注意自然并回归到自然中去。
由于美术馆的预留建设用地位于一个微耸的山坡上,照顾来访者处在不同高度时对建筑形体的感受显得尤为重要。

为了回应大地艺术的主旨,建筑师设计了一个椭圆环形主展厅,由入口接待、员工办公、商店和特别展示等4个功能体块将其托起,并利用山势消解掉首层的体量感。

来访者无论是从山坡下方仰视,还是在山上的观景平台俯瞰,首先映入眼帘的就是椭圆环形主展厅。整个美术馆从不同角度看都像是漂浮在场地中,尤其到了晚上,在照明的映衬下,更像是一个漂浮在山中的光环。

站在场地中央向四周展望,每个方向都有不一样的景观,完全被自然所环绕。因此,建筑师希望将美术馆作为风景的延伸,让来访者一直保持像在自然地形中可以朝任意方向行走一样的状态,即设计一个自由连续的、消除方向感的建筑。

通过首层功能体块分隔出的灰空间,人们可以随意进出中心庭院,如同穿梭于自然之中,模糊了建筑的界限,也减少了其对自然和人的压迫。

建筑师将主展厅内部的剪力墙与展示墙结合在一起,除了可以分隔空间和集成设备管线,更重要的是让整体结构显得更加轻盈,消隐的建筑边界也使展厅获得了最大限度的连续视野。

美术馆作为非日常空间的代名词,艺术品和参观者都被限制在相对独立的空间里,而懒坝美术馆的设计则开放了建筑,让艺术品、自然和人在同一场景中共存。

椭圆环形主展厅使用了大片的玻璃幕墙,人们在欣赏大地艺术作品的同时,可以从360度方向感受山中风景,赶上起雾的天气,如同漫步于云雾中,更能够获得完全置身于自然之中的体验。

参观者来到中心庭院参观、休憩时,会发现椭圆环形的建筑边界把天空风景限定在一个固定的画框里,好像一件大地艺术作品。


项目信息:
设计方:C+ Architects建筑设计事务所
主持建筑师:程艳春
设计团队:薄忱、曹鹏飞、陈律名、刘见龙
结构设计:张锦斌、汤理达
项目类型:文化建筑
时间:2018年3月- 2019年8月
地点:重庆
建筑面积:3000平方米
摄影:C+ Architects建筑设计事务所,武隆·懒坝美术馆,Gao Tianxia
03.
安吉县小学警务室
山川乡,群山环抱,位于中国湖州市安吉县的最南端。设计团队在当地中心小学门口设计了一个警务室,同时作为其温泉景区的入口节点。

建筑是一种特殊的生命体,当他开始与地平线对话时,会获得一种超然的力量。这种力量能够形成一种氛围,让人陶醉其间。设计师希望用一个小建筑,在大地乐章中,深深嵌入一个高音。

设计师认为建筑中的人在望向远山的时候,身体应该处与一种“被大地包裹”的状态,人类的祖先就是在这种状态下与自然发生了最初的对话。于是设计决定以“竖穴”作为设计的第一个动作,即把建筑的一部分埋在地下。



这样,在看到远山之前,身体首先要进入建筑的覆盖之下,同时进入的又不是那么深,保证上身在地面以上,从而产生一种与绵延起伏的地景相融合的空间体验。


为了达到这一效果,在实际施工过程中需要克服一些技术难题,比如大面积的开挖可能导致地下水渗出,为此结构设计师调整了方案,用整体式基础来回应这一建筑操作。

从材料上寻求色彩对比成为实现这一意图的契机。红色是具有感染力的色彩,他带有明显的情绪性倾向,红色陶砖作为屋面,红色钢制幕墙体系作为表皮,红色水磨石作为地面,这一系列差异的红,让红色超越色彩,与远处的青山呼应,而青山也在红色建筑的映衬下显现出来。


远山的起伏为建筑屋面的转折提供了依据。从北侧操场看,屋面逐渐进入地面以下和场地融为一体。从南侧道路看,建筑屋面向上展开,迎接过往的人流。这一节奏的变化与场地的文脉和隐藏的功能诉求相一致。


建筑竣工之后,不论是接送孩子的家长,进山旅行的驴友,亦或是田间耕种归来的村民,都愿意在这里驻足。他如高音,迎着太阳,面对远山,奏响小镇居民的幸福生活。

项目信息
建筑师:里建筑事务所
地址:山川乡,安吉县,湖州市,浙江省,中国
建筑面积:100.0 m2
项目年份:2019
摄影师:映社
主持建筑师:郦文曦
设计团队:林上亮、来鹏飞、王红鹰、葛勇建
施工图配合:泛华建设集团有限公司杭州分公司
施工单位:浙江省三建建设集团有限公司
04.
陕北窑洞村枣园驿站

随着近代黄河水运交通的没落,陕北曾经辉煌的窑洞村落沦为偏远之境,凋敝落寞。
而近年沿黄公路的建设为这些古老的村落迎来了新的契机,沿路“驿站”的设计不仅为道路交通提供便利,更将成为老村对外的“触角”以及城乡生活的“聚集地”。

从政府层面看,沿路“驿站”的建设初衷为沿黄公路村落的交通旅游服务配套,包含停车场、店铺、公共卫生间三种基本功能。
而老村保护区内山地窑院用地紧张,泥河沟村民们则一直希望在这块村里为数不多的枣林开阔地建个大戏台广场以及容纳两百人的红白理事馆,不干扰村内的生活。

面对城乡的差异需求,借助村口驿站建设的机遇,在老村外集中建设功能互补的城乡服务空间,将驿站的功能放大到餐饮、茶室、戏台广场、红白喜事甚至临时的红枣市集等,它成为偏远的泥河沟村对外的触角,同时也是乡村公共生活的集聚场所。
而在泥河沟这处拥有全球重要农业文化遗产(GIAHS):“佳县古枣园”的传统村落,众多功能集合的建筑空间,在村里无疑将成为一种新的公共建筑类型。这处“放大的驿站”如何轻微地置入村口参差的枣林间、自然建造,成为设计面临的首要问题。

基地里成片参差不齐的枣树林,是村里的主要经济作物,每棵枣树都有自己的主人,土地的认定和赔偿也以枣树为准。在此,因地制宜地利用地形高差与林木间距,将建筑空间打散在林中成为首选策略。

驿站广场的规划设计从相地立基开始。避开南侧村入口枣林密集区及观音庙保护区域,保持村口枣林自然进入的氛围,将驿站建筑群主体置于枣林北侧林木稀疏处,毗邻村河道弯曲开阔处的狮山崖壁下,以本地石、木为主料,嵌于枣林与防洪石堤之间。

利用路、林、河堤间高差广狭,定其间进、因树就屋,随曲合方,将建筑还原为基本空间单元,弱化体量,将之消散在枣林间。在参差草木间营造自然的当代聚落,既保护村口的枣林原貌又得一方自在天地。

建筑的结构类型选用轻钢框架与当地特色的石墙、柳编工艺,压低墙体高度,上留高窗,采光通风,同时可以纳入树林景观。他们的单元化体量在林间不仅分散,又因行为功能而局部聚合,成为枣林乡野园林空间的新体验模式:

“驿站店铺石基高筑,前抵沿黄路;大小两间,中开虚缝,后连石砌坡道,漫步入林间聚落,景物随机,高下相成,抵至林下方间石厕,树影婆娑,正是五谷轮回之所。若有兴致,亦可沿林间石道折入驿站内院小憩。

高台茶室、观景餐厅、大灶厨房大小数间,离合相间、随势高低、曲折为院。院中石阶剧场、石堤戏台自成一体,槐荫当庭、崖壁为屏,虚实相生。借黄河崖壁的壮阔背景及滨水河道的自然风光,闲散天地间,再造一处‘北方山水聚落’”。

驿站戏台广场在原本的枣林凹地基础上转化为阶梯场地,将建筑单体空间聚拢,迎合陡峭的金狮山围而成院。所有房间均向内院戏台敞开,但因功能不同形成差异的内外空间氛围。

主厅连接厨房,南开天窗,光线明亮;抬高的茶室,林木围绕,正对戏台广场,空间最为幽暗;即便管理用房的小窗也保证作为办公空间的舒适度和便利性。

面对大山大河,或喜或悲,这种聚集的仪式在漫长的日子里为数不多,但在古老的村落中更不可或缺。枣园驿站以聚落的空间散落林间,静静承载着古村落生活的聚与散。

项目名称:枣园驿站
项目地点:陕西佳县泥河沟村
建筑面积:476m2
设计单位:原本营造
主持设计:唐勇
建筑设计:林艺苹、杨秉鑫、赵沛、王博
结构设计:罗敏杰
设计时间:2017.5-2017.8
竣工时间:2019.8
摄影:林艺苹、杨秉鑫、陈瑜
05.
安仁华侨城南岸美村老酒坊改造

华侨城南岸美村乡村客厅位于大邑县清源村,建筑原为废弃的酒坊。设计团队提出“轻介入·在地化”的设计思路,通过老酒坊改造重塑乡村公共空间,探索安仁特色乡村振兴路径。

老酒坊总建筑面积约800平米,围墙将酒坊与外界隔离。因常年无人打理,设计团队面对的是残破的红砖木结构酒坊和辅房、发酵池以及废弃的蒸馏罐等设施设备,酒坊原有的生产功能已难以为继。

设计将项目定位为乡村客厅,如何通过设计在原有建筑中引入展陈、会议、接待、办公等功能,成为改造关注的重点。

考虑到酒的发酵过程实质上是一个“呼吸”过程,设计团队以“呼吸”为理念,对酒厂的衰败外壳进行集中整治并优化了室内空间,将原有的生产区域改造为会展大厅、文化展区、休闲吧馆、创客学院,并新增了丛林餐厅,打造了一处建筑、田园、游客可以同步进行“多维呼吸”的公共空间。

酒坊主体建筑的改造中,设计师通过曲面屋顶、打开北面墙面以及点缀透明瓦片的方式,增加建筑的灵动感和通透感;通过红砖以及文创标识的使用,延续酒坊建筑风貌和场所精神。


在主体建筑室内布局了会议活动空间、文化展陈空间、休闲接待空间和历史记忆空间,完善酒坊的“客厅”功能,实现了旧的传承和新的演绎。

西侧辅房改造后成为创客学院日常活动和办公场所;东侧辅房作为主体建筑休闲接待空间的延伸,被改造成为会客咖啡厅;南侧辅房则被用作厨房、卫生间、储物间等配套空间。

在丛林餐厅的设计中,我们充分利用现有树林,通过大面积的落地玻璃窗和红装镂空墙体的运用来弱化建筑,让建筑成为环境的“配角”。
设计铺设田间栈道以加强酒坊与周边田园景观的关联;合理利用砖瓦、陶罐等乡土材料及遗存设施,打造富有场地特色的乡土景观。

在乡村振兴的新时代,老酒坊“酿造”出了自己最美的时光,也“酿造”出了安仁乡村振兴的新气象。以老酒坊改造为示范,华侨城南岸美村的未来值得我们去期待。

项目名称:安仁华侨城南岸美村乡村客厅改造设计
设计单位:乡伴朱胜萱工作室
项目设计&完成时间:2018.7-2018.9
项目总负责:朱胜萱
主持设计师:郑光强、卫宏健
建筑设计:梅杰、刘可、李鸿飞、徐若晨、聂蕴君等
景观设计:宋波、梅杰、魏清、孙婷、陈思雨等
室内设计:彭杰、成佳、易明双、郑慧等
文稿撰写:卫宏健
项目地址:成都市大邑县安仁古镇清源村
用地面积:3000平方米
建筑面积:850平方米
摄影版权:朱胜萱工作室
06.
张家界星之营地服务中心

星之营地服务中心项目位于张家界国家森林公园琵琶溪片区内一处山坡丘陵地带内,这里核心的场地特征就是风景,所以如何处理建筑和风景的关系就成为设计首要考虑的要素。

星之营地的功能是一处帐篷宿营,野外拓展、户外活动的基地,服务中心就是为此基地的各项活动提供基本的服务和配套功能。诸如帐篷营地的洗浴,简餐茶点,户外活动的培训以及户外设施的贮藏等,功能要求十分简单。

建筑形体和布局依据地形的起伏和高差变化而自由展开,对场地特征的尊重本身就是一种抽象的“拟态”。箱型的几何形体被设置在不同的高差平台上,但应功能的要求又被联接为一个连续变化的整体,如同山间的几块巨石,“随意”地搁置在场地上,自然而又多变。

建筑的总面积仅有650平方米,它们被分成三段,分别对应三处不同的高差。从前景的露营草坪可以方便地步入建筑的前广场,从这里进入建筑所对应的是门厅和多功能厅。

室外平台可休憩,观景和品茶,同时大平台又是入口广场向屋顶花园的过渡部分,这一过渡空间因为地形高差的原因,相互的连接转换十分自然。

这些设计元素共同形成了一个导向风景的界面,它使得游客的观赏视线有了方向性和场所感。

、

项目名称:星之营地服务中心
设计方:艺合境建筑设计事务所/东南大学建筑学院
项目设计 & 完成年份:2014 & 2015
主创及设计团队:杨志疆,杨程,张胜亚,朱兴彤,曹俊
项目地址:张家界国家森林公园
建筑面积:650㎡
摄影版权:夏强
· END ·
注:如有版权问题,请及时与我们联系,我们将第一时间做出处理。
筑龙建筑设计
微信号:zhulongjz

方案设计 建筑资讯
手绘技巧 建筑施工图

戳原文,更有料!